



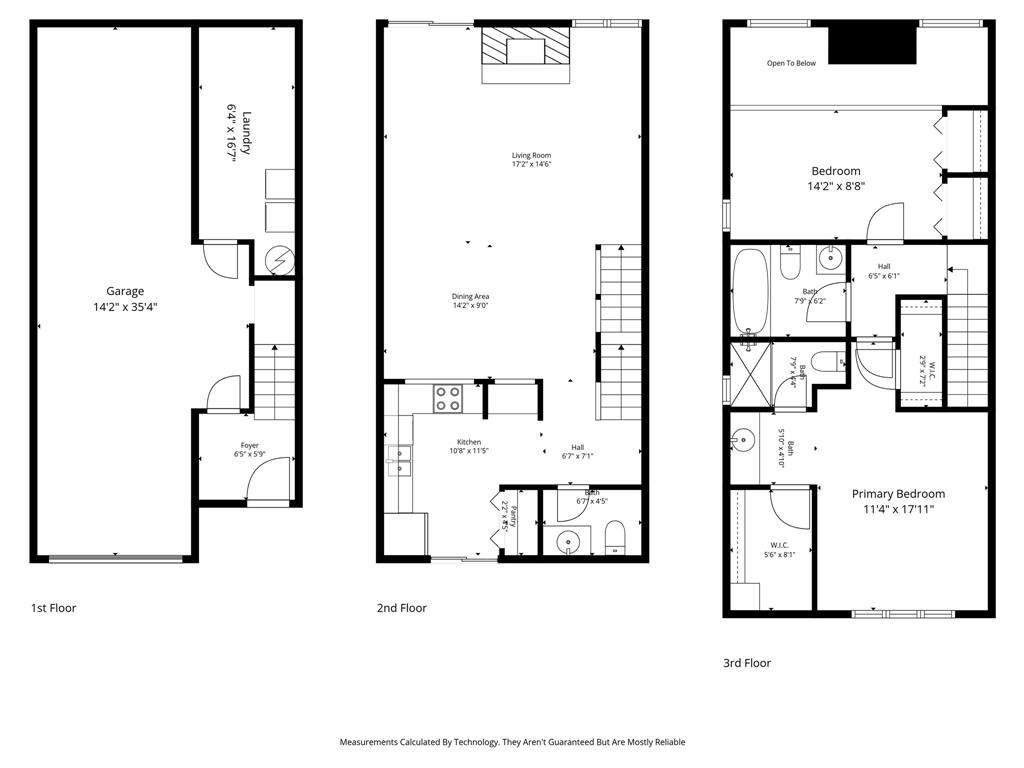
If you’ve been looking for something that feels a little more you than the typical condo, this one is worth a look. Tucked among the trees, this home offers that rare mix of quiet, peaceful surroundings with easy access to everything Dallas has to offer. It’s the kind of place where you can slow down when you’re home, without giving up the convenience of city living.Inside, natural light pours into the open living space, highlighting the hardwood floors & clean, modern finishes. It feels bright, comfortable, & easy to live in whether you’re hosting friends or just enjoying a quiet night in.The kitchen is both stylish & practical, with granite countertops, stainless steel appliances, & plenty of storage to keep everything organized.Upstairs, the primary suite feels like a true retreat. A skylight brings in soft natural light, & updated shower with seamless glass enclosure adds a fresh, updated touch. The custom design walk-in closet, plus an additional large walk-in, gives you more space than you’d expect. Also on the 3rd level, the spacious secondary bedroom features double closets & easy access to a full secondary bath, making it ideal for guests, roommates, or a flexible work-from-home setup.One of the best parts? Not one, but two balconies. Enjoy your morning coffee out front or unwind in the evening with a glass of wine out back, surrounded by mature trees and a sense of calm that’s hard to find in the city. Step outside and you’ll love how connected this home is to the outdoors, with nearby parks and jogging trails easily accessible, perfect for morning walks, weekend runs, or just getting a little fresh air without going far. You’ll also appreciate the everyday conveniences, a full-size washer and dryer in an oversized utility room, plus a refrigerator that can convey with an acceptable offer. This isn’t just a condo, it’s a comfortable, low-maintenance space where city living feels a little more relaxed, a little more private, and a lot more like home.
| 5 hours ago | Listing updated with changes from the MLS® | |
| 14 hours ago | Listing first seen on site |